سوف نقدم الأداء، وأساليب التشغيل الآمنة، والمعايير التقنية من هسغن-12 متوسطة الجهد المفاتيح
1. نطاق الاستخدام

هسغن□-12 (fr) مجموعة مفاتيح معدنية ثابتة من نوع أC (يشار إليها باسم "خزانة الشبكة الحلقية") هي نوع جديد من المفاتيح الكهربائية المصممة لتجديد وبناء شبكات الطاقة الحضرية. كما أنه يستخدم كتيار حمل كسر ، تيار تيار الدائرة القصيرة وإغلاق الطبق في نظام تزويد الطاقة ، وهو مناسب لنظام توزيع الطاقة أC 3-10 كيلو فولت ، 50 هرتز. يستخدم على نطاق واسع في مشاريع إنشاء وتجديد شبكة الطاقة الحضرية ، والشركات الصناعية والتعدينية ، والمباني الشاهقة والمرافق العامة ، وما إلى ذلك ، كوحدة إمداد طاقة لشبكة الحلقة والمعدات الطرفية ، ولعب دور توزيع الطاقة والتحكم في المعدات الكهربائية وحمايتها ، ويمكن أيضًا تثبيتها في محطات فرعية مثبتة مسبقًا. تم تجهيز خزانة الشبكة الحلقية هذه بمفتاح تحميل فراغي وآلية تشغيل نابض ، والتي يمكن تشغيلها يدويًا أو كهربائيًا. تم تجهيز مفتاح التأريض ومفتاح العزل بآليات تشغيل يدوية ، ومجموعة كاملة من خزانة الشبكة الحلقية هذه قوية وصغيرة. لا يوجد خطر الاحتراق والانفجار ، ولديه وظيفة "الوقاية الخمسة" الموثوقة. تتوافق خزانة الشبكة الحلقية هذه مع الأحكام ذات الصلة من GB3960 "مفاتيح معدنية 3 ~ 35KV أC" و IEC60420 "مفتاح تحميل تيار متردد عالي الجهد-أجهزة كهربائية تركيبة الصمامات" القياسية.
2. النموذج ومعناه
هسغن□-12 (ر. أ)
H: شبكة الحلبة
X: نوع العلبة
ز: ثابت
N: داخلي
□: الرقم التسلسلي للتصميم
12: الجهد المقنن
(F.R): مفتاح الحمل-تركيبة الصمامات
3. ظروف الاستخدام العادية
1. درجة حرارة الهواء المحيط: -15. 0 40 ℃ ؛
2. الارتفاع: 1000 متر وأقل ؛
3. ظروف الرطوبة: المتوسط اليومي لا يزيد عن 95 ٪ ، متوسط ضغط بخار الماء اليومي لا يزيد عن 2.2 كيلو باسكال ، المتوسط الشهري لا يزيد عن 95 ٪ ، والمتوسط الشهري لضغط بخار الماء لا يزيد عن 8 كيلو باسكال ؛
4. شدة الزلازل: لا تزيد عن 8 درجات ؛
5. لا توجد ملوثات واضحة مثل الغازات المسببة للتآكل أو القابلة للاشتعال.
ملاحظة: إذا تم تجاوز شروط الاستخدام العادية المذكورة أعلاه ، يجوز للمستخدم التفاوض مع الشركة.
4. المعلمات التقنية الرئيسية
الرقم التسلسلي | الاسم | وحدة | البيانات | |
1 | الجهد المقنن | KV | 12 | |
2 | التصنيف الحالي | مفاتيح تحميل | أ | 630 |
مفاتيح مفاتيح مجمعة | 125 | |||
3 | تصنيف دائرة قصيرة كسر الحالي | كا | 31.5 | |
4 | تصنيف تيار كسر الحمل النشط | أ | 630 | |
5 | مصنفة لتيار الصمود على المدى القصير | كا | 20 | |
6 | تصنيف ذروة الصمود الحالية | كا | 50 | |
7 | تم تصنيف تردد الطاقة المصنف لتحمل الجهد البيني ، الأرضي/كسر | KV | 42/48 | |
8 | صدمة البرق مقاومة لمرحلة الجهد ، الأرض/كسر | KV | 75/85 | |
9 | الحياة الميكانيكية | مرات | 10000 | |
10 | تيار التسليم المصنف (أجهزة مدمجة) | أ | 3150 | |
11 | كيف يعمل | يدوي أو كهربائي | ||
12 | مستوى الحماية | IP3X | ||
5. الخصائص الهيكلية(كما هو موضح في الشكل 2 والشكل 3)
1. خصائص الأداء الهيكلي
1.1.1 تتبنى خزانة الشبكة الحلقية التشكيل الجانبي 8MF ، ويتم تثبيت الإطار بالكامل مع فتحات المعامل B = 2 (tan.
L1.2 خزانة شبكة الحلقات مجهزة بمفتاح تحميل أو جهاز كهربائي تركيبة الصمامات ، والتي تحتوي على مفتاح عزل ، ومفتاح تحميل فراغي ، ومفتاح تأريض ، ومفتاح فصل ومفتاح تأريض له فواصل واضحة.
1 ، 3 مفتاح العزل ، مفتاح الحمل الفراغي ، مفتاح التأريض ، وباب الخزانة بها أجهزة حفر وتشابك مثالية وموثوقة ، والتي يمكن أن تمنع بشكل فعال سوء التشغيل وضمان الصيانة الآمنة.
1.1.4 يمكن تشغيله يدويًا وكهربائيًا.
1. باب الخزانة وأداة خزانة القياس L5 مجهزة بدبابيس مانعة للتسرب.
1.1.6 خزانة كهربائية بتركيبة الصمامات وأنبوب الذوبان مع دبوس إطلاق. في حالة وجود دائرة كهربائية قصيرة ، يضرب دبوس النار آلية التعثر لتحقيق الفتح والكسر السريع ، والتي يمكن أن تحمي المعدات الكهربائية بشكل فعال.
1.L 7 خزانة شبكية حلقية تعتمد على التشغيل الأمامي ، تركيب حائط موثوق.
2. "خمسة الوقاية" وظيفة القفل
2. 2.1 عملية نقل الطاقة: فقط عندما يكون باب الخزانة مغلقًا ومقفلاً ، ويتم تشغيل المفتاح الأرضي إلى وضع "الفتح" ، يمكن تشغيل مفتاح الحمل لإغلاق الموضع.
2.2.2 عملية انقطاع التيار الكهربائي: عندما يكون مفتاح الحمل في وضع العزل ، يمكن إغلاق مفتاح التأريض ، وعندما يكون مفتاح التأريض في وضع مغلق ، يتم إدخال قسم العزل في مكانه لفتح باب الخزانة.
2.1. 3-قاطع الفراغ متشابك بشكل موثوق مع سكين العزل ، وسكين العزل وسكين التأريض مرتبطان ببعضهما البعض ومتشابكة مع باب الخزانة ، كما أن القسم العازل متشابك مع باب الخزانة.
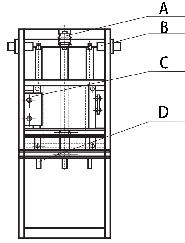
![]() | الشكل 2 أ: عازل ب: من خلال غلاف الجدار ج: آلية التشغيل د: مفتاح التأريض |
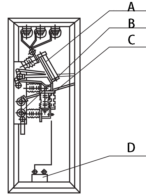
![]() | الشكل 3 أ: الصمامات (بوابة سكين العزل) ب: آلية التحكم في الرصاص ج: مفتاح تحميل د: محول التيار |
6. مبدأ إمدادات الطاقة لشبكة الحلقة
مزود طاقة الشبكة الحلقية> يتكون من ثلاث وحدات أساسية (انظر الشكل) يتم استخدام خزانات خط المدخل والمخرج كوحدات شبكة حلقية ، والتي يمكن عزلها في الوقت الذي يحدث فيه أي خطأ ، ووحدة أخرى تضمن تزويد الطاقة المستمر لفرع محول المستخدم. تلعب خزانة شبكة حلقة المستخدم دورًا في حماية المحول وعزله ، وهو مناسب للصيانة والإصلاح. يمكن تمديد خزانة الشبكة الحلقية بشكل تعسفي ، ويمكن أن تتكون من مجموعة متنوعة من مخططات الجمع من الوحدات الأساسية وفقًا لمتطلبات المستخدم.
![]() | ||
| خزانة مدخل ومخرج الكابل ، خزانة مستخدم ، خزانة محول ، خزانة كابل لخط الدخول والخروج |
7. مخطط الدائرة الرئيسية الرسم البياني
رقم المخطط | 01 | 02 | 03 | 04 | 05 | 06 |
مخطط الدائرة الرئيسية الرسم البياني | ![]() | |||||
الاستخدام | كابل داخل وخارج الخط | كابل داخل وخارج الخط | كابل داخل وخارج الخط | كابل داخل وخارج الخط | كابل داخل وخارج الخط | كابل داخل وخارج الخط |
عزل/أجهزة التحميل/الجمع | GN□-12 د | GN□-12 د | GN□-12 د | FZN21-12 د | FZN21-12 د | FZN21-12 د |
الصمامات | RN3 | RN3 | ||||
محول تيار | LZZBJ9 | LZZBJ9 | ||||
مانعات | HY5W | |||||
رقم المخطط | 07 | 08 | 09 | 10 | 11 | 12 |
مخطط الدائرة الرئيسية الرسم البياني | ![]() | |||||
الاستخدام | كابل داخل وخارج الخط | كابل داخل وخارج الخط | كابل داخل وخارج الخط | كابل داخل وخارج الخط | كابل داخل وخارج الخط | كابل داخل وخارج الخط |
عزل/أجهزة التحميل/الجمع | FZN21-12 د | FZN21-12 د | FZN21-12 د | FZN21-12 د | FZN21-12 د | GN□-12 د |
الصمامات | RN2 | RN2 | RN2 | |||
محول تيار | LZZBJ9 | LZZBJ9 | LZZBJ9 | LZZBJ9 | ||
محول الجهد | JدZ | JدZ | JدZ | |||
مانعات | HY5W | HY5W | HY5W | |||
رقم المخطط | 13 | 14 | 15 | 16 | 17 | 18 |
مخطط الدائرة الرئيسية الرسم البياني | ![]() | |||||
الاستخدام | خطوط كابل القياس الواردة والصادرة | كابل داخل وخارج الخط | كابل داخل وخارج الخط | كابل داخل وخارج الخط | خطوط كابل القياس الواردة والصادرة | منفذ الكابل الوارد العلوي |
عزل/أجهزة التحميل/الجمع | FZRN21-12 | FZRN21-12 د | FZRN21-12 د | FZRN21-12 د | GN□-12 د | |
الصمامات | RN2 | S□لاج | S□لاج | S□لاج | RN2 | RN3 |
محول تيار | LZZBJ9 | LZZBJ9 | LZZBJ9 | LZZBJ9 | ||
محول الجهد | JدZ | JدZ | ||||
رقم المخطط | 19 | 20 | 21 | 22 | 23 | 24 |
مخطط الدائرة الرئيسية الرسم البياني | ![]() | |||||
الاستخدام | منفذ الكابل الوارد العلوي | منفذ الكابل الوارد العلوي | منفذ الكابل الوارد العلوي | منفذ الكابل الوارد العلوي | منفذ الكابل الوارد العلوي | منفذ الكابل الوارد العلوي |
عزل/أجهزة التحميل/الجمع | FZRN21-12د | FZRN21-12 د | FZRN21-12 د | FZRN21-12 د | FZRN21-12 د | FZRN21-12 د |
الصمامات | S□لاج | S□لاج | S□لاج | S□لاج | ||
محول تيار | LZZBJ9 | LZZBJ9 | LZZBJ9 | LZZBJ9 | ||
محول الجهد | ||||||
رقم المخطط | 25 | 26 | 27 | 28 | 29 | 30 |
مخطط الدائرة الرئيسية الرسم البياني | ![]() | |||||
الاستخدام | الاتصال | الاتصال | القياس والاتصال | القياس والاتصال | اتصال الخط العلوي | اتصال الخط العلوي |
عزل/أجهزة التحميل/الجمع | FZRN21-12 | FZRN21-12 د | FZRN21-12 د | FZRN21-12 | ||
الصمامات | S□لاج | RN2 | RN2 | S□لاج | ||
محول تيار | LZZBJ9 | LZZBJ9 | ||||
محول الجهد | JدZ | JدZ | ||||
8. شكل وحجم التثبيت
1. الحجم الكلي لخزانة شبكة الحلقات
![]() | ![]() | اتجاه عرض الخزانة |
| الوصف: يمكن تحديد الارتفاع | اتجاه عمق الخزانة |
2. حجم تركيب خزانة شبكة الحلقة
![]() |
| ملاحظة: يجب أن يكون صلب القناة مؤرض بشكل موثوق |
