سنقدم الأداء وطرق التشغيل الآمنة والمعايير التقنية للمحولات المثبتة ZزS-12 Pad

1. أحكام عامة
يستخدم هذا الدليل لمساعدة المهندسين والفنيين في تركيب واستخدام وتشغيل المحولات المدمجة (المشار إليها فيما يلي باسم المجمعات).
المحول المجمع الذي ينتجه المصنع هو محول توزيع ثلاثي الطور معزول بالكامل ، محكم الغلق بالكامل ، مقاوم للماء للتركيب على سطح المنضدة ، وهو مناسب لـنظام التوزيع ثلاثي الطور معالجهد المقنن 10 كيلو فولت. تلبية متطلبات المعايير الوطنية المقابلة
هذا الدليل ليس subscenium لإجراءات التشغيل العامة للمعدات الكهربائية ، ولا يمكنه تلبية جميع متطلبات التركيب والاستخدام والتشغيل. يجب تنفيذ هذه المهام مع موظفين على دراية بإجراءات السلامة والتشغيل لنظام الطاقة
2. شروط الاستخدام والبيئة
أ. الارتفاع: لا يزيد عن 1000 متر.
ب. درجة الحرارة المحيطة: -25ج إلى 40ج
ج. الرطوبة النسبية: لا تزيد عن 94 ٪ (المتوسط اليومي).
د. ميل الأرض: لا تمرين 3.
ه. سرعة الرياح: لا تزيد عن 35.
الأماكن الداخلية والخارجية دون صدمة عنيفة والاهتزاز ، لا تلوث خطير ووسائط تآكل كيميائي ، ولا خطر انفجار.
3. المعلمات التقنية الرئيسية
الرقم التسلسلي | الاسم | وحدة | جانب الضغط العالي | محول | جانب الضغط المنخفض |
1 | الجهد المقنن | كV | 10 | 0.4 | |
2 | أقصى الجهد التشغيل | كV | 12 | ||
3 | القدرة المقدرة | كVأ | 50-2500 | ||
4 | التصنيف الحالي | أ | 10-630 | 100-2500 | |
5 | تحمل التيار لفترة قصيرة | كا | 12.5/20 | 12.6-40 | |
6 | وقت تحمل قصير | S | 2 | 1 | |
7 | ذروة الصمود الحالية | كا | 50 | 30-60 | |
8 | تردد الطاقة تحمل الضغط | كV | 35 | 35 | 5 |
9 | تأثير البرق تحمل الضغط | كV | 75 | 75 | |
10 | الصمامات عالية الجهد الحد الحالي قطع بسرعة التيار | كا | 50 | ||
11 | مستوى الحماية | Ip33 | Ip65 | Ip33 | |
12 | مستوى الضوضاء | ديسيبل | W55 | ||
13 | التردد المقنن | هرتز | 50/60 |
4. تفريغ فحص القبول
تحقق من المنتج لمعرفة التلف والتشوه والكسر. تحقق مما إذا كانت الملحقات والأدوات الخاصة كاملة وفقًا لقائمة التعبئة ، وتثبيتوفقًا لمتطلبات التثبيت بعد التأكد من صحتها.
5. التركيب
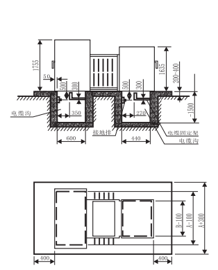
أ. يتم تركيب التجميع على قاعدة خرسانية بارتفاع 100-400 من الأرض يكفي لتحمل وزن التجميع. يظهر الرسم البياني للحجم الموصى به لحجم التجميع والقاعدة في الملحق 1.
ب. يتم وضع الكبل قبل أن تكون المجموعة في مكانها ويجب أن يكون بدون كهرباء.
ج. يوجد خطاف للتحميل والتفريغ بالقرب من الجزء العلوي من الصندوق ، ولا يمكن أن تتجاوز الزاوية بين كابل الرفع الصلب والخط العمودي 30 عند تمديدها. إذا لزم الأمر ، يجب استخدام العارضة لدعم كابل الصلب لتجنب تشوه الهيكل أو خطاف الرفع. يتركز معظم وزن محول التجميع في الصندوق الرئيسي الذي يحتوي على قلب الحديد ، وزيت اللف والعزل ، ومعظم الصناديق الطرفية ذات الجهد العالي والمنخفض فارغة ، والوزن خفيف نسبيًا. (قد يتسبب الاستخدام غير السليم للخطافات أو الرافعات في تلف التجميع أو الملحقات الأخرى ، أو يتسبب في إصابة الموظفين.)
إشعار: إذا كان لا يمكن رفع محول المجموعة بواسطة الرافعة ، فيمكن انزلاقه باستخدام لوح التزلج أو الأسطوانة. عند دعم الصندوق وإدخال الصندوق الأسطوانة أدناه ، هناك حاجة إلى رافعتين على الأقل ، ويجب رفع الزاويتين المجاورتين بسلاسة في نفس الوقت لتجنب تشوه الجزء السفلي من الصندوق. جاك ، لا يمكن وضعها إلا على زوايا الجزء السفلي من الصندوق ، ويجب إضافة لوحة دعم ، ويجب عدم وضع الرافعة تحت الحوض الحراري أو الصمام أو الفولاذ الرقيق طبق. إذا تم استخدام بكرات ، يجب أن يكون الرقم مناسبًا ويجب حمل وزن الصندوق بالتساوي. قبل سحب المحول، قم بتثبيت حلقات السحب على جانبي الجزء السفلي من محول الصندوق. لا تعلق الكبل على الصب الذي تم إعادة تجميع أو أجزاء الصفائح المعدنية الأخرى.
د. موقع التركيب
هناك نوعان من الزيت العازل في التركيب ، أحدهما زيت نقطة اشتعال عالية والآخر زيت معدني عالي الجودة. محول المجموعة مع زيت اشتعال عالي (مع علامات واضحة في يمكن استخدام غرفة العزل ذات الجهد المنخفض لمحول المجموعة) في المبنى أو في الهواء الطلق ؛ لا يمكن استخدام تركيبة الزيوت المعدنية في المباني. نقطة التجمد للزيوت المعدنية عالية الجودة هي-45. فيما يلي ؛ نقطة التجمد لزيت الاشتعال العالي هي-30. 1. لا يمكن استخدام مزيج زيت الاشتعال العالي في المناطق ذات درجة حرارة محيطة أقل من-30 درجة مئوية. سواء كان مزيجًا من الزيوت المعدنية عالية الجودة أو زيت الاشتعال العالي ، إذا تم تشغيله عندما تكون درجة الحرارة المحيطة أقل من-20 درجة مئوية ، فيجب تشغيله لمدة 24 ساعة دون تحميل للتسخين المسبق ثم تحميله تدريجيًا. إذا كنت في شك ، يرجى الاتصال بالمصنع.
6. اختبار التسليم
بعد اكتمال التثبيت ، قم بتوصيل قابس كابل الاختبار (يمكن شراء قابس كابل الاختبار كخيار) ، وإجراء اختبار التسليم وفقًا لإجراءات الاختبار ذات الصلة للمعايير الوطنية.
7. احتياطات التركيب
أ. عند الوصول إلى النظام
قبل توصيل أي نظامأرضي الصندوق أولاً. يجب توصيل الطرف التأريض للصندوق بنقطة أساس ثابتة ومنخفضة المقاومة.
قبل الأسلاك ، قم بتنظيف جميع الأكمام والبطانات والمحطات الطرفية والاتصالات ، وتنظيف جميع الغبار والزيت والأجسام الغريبة.توصيل النقطة المحايدة لتغيير المجموعة والنقطة المحايدة للنظام.
تثبيت الملحقات كما هو مطلوب لضمان النفط العازل هو في الارتفاع المناسب.
عندما لا يكون أحد في الخدمة ، أغلق وأغلق باب الصندوق.
8. عند التشغيل
☆ في ظل الظروف العادية ، يجب تنفيذ عملية إدخال الصمامات بعد قطع التيار الكهربائي ، ويجب قراءة تعليمات التشغيل ذات الصلة بعناية قبل التشغيل.
☆ لا يمكن استخدام مفتاح التحميل الداخلي إلا لمقاطعة التيار المصنف ، ولكن ليس لفصل تيار الخطأ.
☆ يجب استخدام ذراع التشغيل المعزول لتشغيل مفتاح التحميل.
ج. عندما تكون الصيانة مطلوبة
☆ لا يمكن إصلاح محول المجموعة أثناء تشغيل النظام. قبل الصيانة ، يجب عزله وإيقاف تشغيله وعزله تمامًا عن محول المجموعة.
☆ تشغيل فتيل المكونات ، وفتح صمام حقن الزيت وإطلاق الضغط الداخلي للمحول (اسحب صمام تخفيف الضغط) قبل فتح خزان الزيت ، ولا تقم بإجراء العمليات المذكورة أعلاه قبل أن يكون الضغط الداخلي صفرًا.
تحذير: قد يكون الغاز المنبعث قابل للاشتعال ، لذا كن حذرًا عند إطلاقه.
لا تفتح غطاء صندوق محول المجموعة ما لم يكن ذلك ضروريًا للغاية. قبل الفتح ، نظيفةالـمنطقة حول الغطاء وإغلاقه في أقصر وقت ممكن لمنع الرطوبة والغبار من الدخول إلى الصندوق. لا تقم بتشغيل تغيير المجموعة في الطقس الرطب أو الممطر.
8. عملية
أ. التفتيش قبل التكليف
☆ تحقق مما إذا كانت مفاصل الكبلات متصلة كما هو مطلوب ، وما إذا كانت مفاصل الغلاف وسدادات الكوع متصلة في مكانها ؛
☆ يجب توصيل جميع وصلات الكبلات وسلك التأريض الخاص بالصندوق بنقطة تأريض ثابتة ومنخفضة المقاومة ؛
☆ بعد التأكد من عدم وجود مشكلة ، يمكن تشغيلها ؛
☆ قبل تشغيل محول المجموعة ، يجب فحص ارتفاع مستوى الزيت في الصندوق ، ويجب قراءة ارتفاع مستوى الزيت مباشرة من مقياس مستوى الزيت ، ويجب أن يكون مستوى الزيت في الموضع المحدد لمقياس مستوى الزيت عند 25 درجة مئوية.
ملاحظة:قبل وضع تغيير المجموعة قيد التشغيل ، يجب أن يكون لديك فهم متعمق لتغيير المجموعة. تأكد من أنك على دراية بتطبيقات ووظائف جميع المعدات والملحقات. يرجى ارتداء ملابس واقية ومعدات الحماية اللازمة أثناء التشغيل ، واستخدام أذرع التشغيل المعزولة عند تأريض المعدات أو اختبارها أو عزلها أو إغلاقها. عندما لا يمكن تحديد حالة إعادة التنظيم ، يتم التعامل معها كعلاج حي.
ب. التحضير للتكليف
أ. زيت إعادة الملء
عند الحاجة ، يجب تجديد الزيت في الوقت المناسب
☆ تستخدم المضخات والخراطيش غير الملوثة ؛ لا تستخدم الخراطيمات المطاطية. لأن الزيت سوف يذوب الكبريت الموجود فيه ، يجب استخدام خرطوم معدني أو غير مطاطي.
☆ قم بتوصيل أنبوب مخرج الزيت لمضخة الزيت بمنفذ حقن الزيت في خزان الزيت.
☆ ضخ الزيت مرة أخرى من أسفل الحاوية المؤقتة المختومة ، مع الحرص على عدم السماح لأنبوب مدخل الزيت بسحب الهواء.
☆ لمنع تضخم تدفق الزيت بسرعة عالية ، ضخ ببطء حتى يكون مستوى الزيت مطلوبًا.
ب. التأريض
يجب توصيل الأرض المخصصة في حاوية المحول بنقطة أساس دائمة.
ج. أسلاك عالية الجهد
☆ تم تجهيز التجميع بمقبس غلاف عالمي عالي الجهد. يجب توصيل الأكمام أحادية المرور أو مزدوجة المرور المتطابقة مع مقبس الغلاف في الحقل. يتم عرض طريقة التثبيت لتمرير واحد وجلبة تمرير مزدوجة في الملحق 3.
☆ قم بتثبيت قابس كابل التبديل على كابل الأسلاك عالي الجهد وفقًا لطريقة التثبيت الموضحة في الملحق 4 ، ثم أدخل قابس التبديل في غلاف تمرير مفرد أو مزدوج.
د. أسلاك الجهد المنخفض
هناك محطات سلكية ثلاثية الطور ومحايدة على محول التجميع لتوصيل الكابلات ذات الجهد المنخفض.
إشعار:لا يمكن للمجموعة العمل إلا وفقًا للتصنيف المحدد على اللوحة ، وستؤثر عملية التحميل الزائد على المدى الطويل بشكل كبير على متوسط العمر المتوقع. إذا تم تخزين المجموعة في الهواء الطلق لفترة طويلة ، يجب أخذ عينات الزيت للتحقق من محتوى الرطوبة وقوة العزل الكهربائي. عندما تغادر المجموعة المصنع ، يكون هناك فراغ منخفض بشكل عام فوق سطح الزيت في الصندوق (مقياس الضغط يظهر ضغطًا سلبيًا) ، والذي قد يتغير مع تغيير التشغيل أو البيئة في ظل الظروف العادية ، إذا أظهر مقياس الضغط صفراً الضغط لفترة طويلة ، يشير إلى أنه قد يكون هناك تسرب ، وهناك حاجة إلى مزيد من الفحص.
ج. الاحتياجات التشغيلية
☆ قبل التشغيل ، يجب فهم حالة تشغيل الخط وموضع تبديل الصنبور ، ويجب أن يكون مفتاح الحمل في وضع غير متصل بالمحول ؛
☆ فهم الغرض والوظيفة من جميع الغدد الكابل قبل العملية ؛
☆ يجب على المشغل الوقوف في أفضل وضع واستخدام ذراع التشغيل المعزول لتشغيل الحمل قبل العملية.
☆ وفقًا لأنظمة التشغيل ذات الضغط العالي ذات الصلة ، يجب استخدام معدات الحماية اللازمة لضمان السلامة.
د. نقل الطاقة
أغلق مفتاح المستوى السابق ، ثم استدر مفتاح الحمل إلى موضع توصيل المحول وفقًا لمتطلبات 8. 3 ، وسيتم تشغيل محول المجموعة.
9. المرفقات
أ. مغير الصنبور
☆ مغير الصنبور المتغير للمجموعة هو مغير صنبور خالي من التحميل ، ولا يمكن تنفيذ عملية تغيير الصنبور إلا عندما يتم التأكد من انقطاع التيار الكهربائي.
☆ يحتوي مبدل الصنبور على ثلاثة أو خمسة تروس ، مميزة بـ أ و ب و ج و د و ه ، ونطاق الصنبور الخارجي هو 10كV ± 5 ٪ أو 10كV ± 2*2. 5 ٪ 。
☆ يتم تثبيت مقبض التشغيل على شكل حرف T لمبدل الصنبور على لوحة غرفة الضغط العالي ، قبل التشغيل ، يتم فك مسمار القفل ، ثم يتم تدويله إلى الموضع المطلوب ، ويتم شد مسمار القفل بعد التعديل. لإضافة قفل ، يمكنك تشديد قفل القفل المنخفض وقفله بقفل.
ملاحظة:يجب إيقاف تشغيل محول المجموعة قبل تشغيل مبدل الصنبور ، وإلا فإنه سيسبب تلفًا للمجموعة وقد يؤدي إلى إصابة شخصية خطيرة.
مفتاح الحمل
☆ مفتاح التحميل هو مفتاح ربط ثلاثي المراحل مع هيكل تشغيل سريع في الزنبرك. هناك نوعان: 2 المواقف و 4 وظائف. فيما بينها ، يتم استخدام موقعين لمحولات النوع الطرفي ، ويتم استخدام 4 أوضاع لمحولات نوع الشبكة الحلقية.
☆ لا يمكن استخدام مفتاح التحميل إلا لمقاطعة تيار الحمل ، وليس تيار الدائرة القصيرة.
☆ يجب استخدام قضيب التشغيل المعزول لتشغيل مفتاح التحميل.
الصمامات الإدراج
☆ توفر الصمامات الإضافية الراحة لاستبدال الصمامات من الخارج ، كما هو موضح في الملحق 2 لطريقة استبدال الصمامات.
☆ قدرات مختلفة من الجمع ، مواصفات الصمامات المستخدمة مختلفة ، لذلك يجب الانتباه عند استبدال الصمامات. يتم وضع علامة على جميع نماذج الصمامات المختارة من الداخل لباب كل مجموعة محول غرفة الضغط العالي ، ويجب تحديد نفس النوع من الصمامات عند استبدال الصمامات ، ونماذج الصمامات المختارة لمحولات الصناديق ذات السعة المختلفة هي كما يلي:
القدرة | مواصفات الصمامات الإدراج |
100 | 4038108ج06 |
125 | 4038108ج07 |
160 | 4038108ج07 |
200 | 4038108ج09 |
250 | 4038108ج09 |
315 | 4038108ج09 |
400 | 4038108ج12 |
500 | 4038108ج12 |
630 | 4038108ج12 |
800 | 4038108ج14 |
1000 | 4000353ج16 |
1250 | 4000353ج16 |
1600 | 4000353ج17 |
د. ملحقات كابل
ملحقات الكابل: مقابس الكوع ، أكمام أحادية المرور (أو أكمام مزدوجة المرور) ، موصلات أحادية المرور (أو موصلات مزدوجة المرور) ، أغطية واقية عازلة ، انظر الملحق 3-5 على التوالي.
هـ. مانعات زيادة
إذا كنت بحاجة إلى تثبيت مانع الصواعق على المجموعة ، فيمكنك اختيار مانع أكسيد الزنك المعزول بالكامل من نوع الكوع. أثناء التثبيت ، يعتمد قطار المجموعة غلاف مزدوج التمرير ، يتصل طرف واحد من الغلاف المزدوج التمرير بقابس من نوع الكوع ، والطرف الآخر متصل بمانع الصواعق. طريقة تركيب مانع اندفاع:
☆ قم بتوصيل سلك التأريض بأرضية النظام.
☆ استخدام الأسلاك النحاسية لربط نهاية التأريض من صواعق مع تأريض النظام.
☆ استخدام سطح الاتصال من مانع مشحم المقدمة من هذا المصنع.
☆ استخدم ذراع التشغيل المعزول لربط فتحة تشغيل الصواعق ، وأدخل الصواعق في وصلة الغلاف بالقوة ، وتأكد من إدخال الصواعق في مكانه. ملاحظة: يجب إزالة مانع الصواعق وإعادة تثبيته بعد الاختبار.
و. مؤشر الخطأ وعرض الجهد
انظر الملحق 6
10. الصيانة
أ. صيانة خارجية
فحص منتظم لجميع الأسطح الخارجية للتكوين، وإصلاحه على الفور إذا كان الطلاء يحتوي على كدمات عرضية وخدوش وارتداء.
ب. الصيانة الداخلية
تحقق بانتظام مما إذا كانت جميع الملحقات والأدوات الموجودة في غرف الضغط العالي والمنخفض في المجموعة تعمل بشكل طبيعي ، وتحقق مما إذا كان هناك أي تسرب في كل جزء مانع للتسرب.
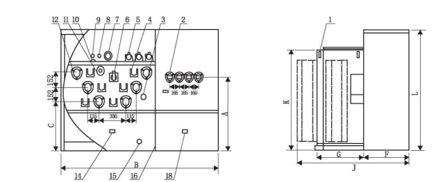
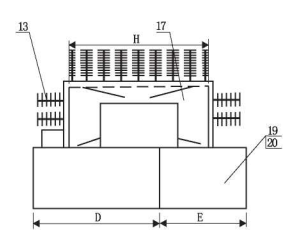
ملحق 1 حجم محول مشترك وتركيب
| 1 خطاف 11 مقياس درجة حرارة الزيت 2 غلاف منخفض الجهد 12 مقبس غلاف عالي الجهد 3 مغير الصنبور 13 غرفة تبريد 4 مثبت على الحائط 14 أرضيات غرفة عالية الضغط 5 صمام توصيل كهربائي 15 صمام تصريف الزيت 6 مفاتيح الحمل 16 الحاجز 7 مقياس الضغط 17 خزان الوقود 8 صمام تخفيف الضغط 18 تأريض غرفة الضغط المنخفض 9 منفذ حقن الزيت 19 غرفة الضغط العالي 10 مقياس مستوى الزيت 20 لوحة الاسم |
شخصية 1-1 مخطط الأبعاد لنوع شبكة حلقة القياسية ومحطة الكارب الكروسية الجمع بين الصحافة
قدرة التركيب (كيلو فولت أمبير). | أ | ب | ج | د | ه | F | ز | ح | ي | ك | ل |
100 | 1030 | 1971 | 680 | 1091 | 880 | 536 | 560 | 1350 | 1176 | 1346 | 1580 |
125 | 1030 | 1971 | 680 | 1091 | 880 | 536 | 560 | 1350 | 1176 | 1346 | 1580 |
160 | 1030 | 1971 | 680 | 1091 | 880 | 536 | 560 | 1350 | 1176 | 1346 | 1580 |
200 | 1030 | 1971 | 680 | 1091 | 880 | 536 | 560 | 1350 | 1176 | 1346 | 1580 |
250 | 1030 | 1971 | 680 | 1091 | 880 | 536 | 560 | 1350 | 1335 | 1346 | 1580 |
315 | 1030 | 1971 | 680 | 1091 | 880 | 536 | 560 | 1350 | 1335 | 1346 | 1580 |
400 | 1030 | 1971 | 680 | 1091 | 880 | 536 | 560 | 1350 | 1335 | 1346 | 1580 |
500 | 1030 | 1971 | 680 | 1091 | 880 | 536 | 560 | 1350 | 1335 | 1346 | 1580 |
630 | 1290 | 2000 | 796 | 963 | 1037 | 660 | 660 | 1440 | 1540 | 1486 | 1710 |
800 | 1290 | 2000 | 796 | 963 | 1037 | 660 | 660 | 1440 | 1675 | 1486 | 1710 |
1000 | 1290 | 2000 | 796 | 963 | 1037 | 660 | 660 | 1440 | 1765 | 1486 | 1710 |
1250 | 1200 | 2205 | 836 | 1158 | 1047 | 660 | 760 | 1440 | 1865 | 1486 | 1710 |
1600 | 1200 | 2205 | 836 | 1213 | 992 | 660 | 800 | 1700 | 1920 | 1526 | 1710 |
ملاحظة: (1). الأبعاد المذكورة أعلاه هي للإشارة فقط ؛
(2). يكون للنوع الطرفي ونوع الشبكة الحلقية نفس الأبعاد الكلية.
|
|
شخصية مخطط تخطيطي 1-3 لتركيب المحولات المدمجة القياسية | شخصية مخطط تخطيطي 1-4 لتركيب المحول المدمج الأم الفرعية |

1 تأريض لغرفة الضغط المنخفض 2 غلاف منخفض الضغط 3 خطافات غرفة الضغط العالي 4 خزان وقود 5 6 بالوعة الحرارة 7 الجدار تصاعد 8 ميناء حقن النفط 9 صمام تخفيف الضغط 10 مقياس مستوى الزيت | مقياس ضغط 11 مفتاح تحميل 12 13 صمام توصيل 14 أداة تغيير الصنبور 15 تأريض في الغرفة شديدة الفولتية 16 مقبس غلاف عالي الجهد 17 قطع غيار المكسرات 18 تأريض لغرفة الضغط المنخفض 19 لوحة أسماء |
سعة المحول (كيلو فولت أمبير). | أ | ب | F | ز | ك |
100 | 2000 | 1400 | 660 | 1400 | 730 |
125 | 2000 | 1400 | 660 | 1400 | 730 |
160 | 2000 | 1400 | 660 | 1400 | 730 |
200 | 2000 | 1400 | 660 | 1400 | 730 |
250 | 2000 | 1400 | 660 | 1400 | 730 |
315 | 2000 | 1400 | 660 | 1400 | 730 |
400 | 2000 | 1400 | 660 | 1400 | 730 |
500 | 2000 | 1400 | 660 | 1400 | 730 |
630 | 2205 | 1400 | 800 | 1465 | 755 |
800 | 2205 | 1400 | 800 | 1465 | 755 |
1000 | 2205 | 1400 | 800 | 1465 | 755 |
1250 | 2205 | 1400 | 800 | 1465 | 755 |
ملاحظة: (1). الأبعاد المذكورة أعلاه هي للإشارة فقط ؛
(2). يكون للنوع الطرفي ونوع الشبكة الحلقية نفس الأبعاد الكلية.
ملحق 2 الصمامات في المكونات
سحب أنبوب الصمامات
1. اسحب صمام تحرير الضغط ، وبعد إطلاق الضغط في خزان الوقود بالكامل ، ربط فتحة تشغيل أنبوب الصمامات مع ذراع التشغيل المعزول.
2. ادفع مقبض التشغيل لأسفل بحيث يقوم الخطاف المتحرك لمقبض التشغيل بإغلاق فتحة التشغيل لأنبوب الصمامات ، وقم بتدوير خطاف القفل لأنبوب الصمامات بمقدار 90 درجة لتحرير حالة القفل بين أنبوب الصمامات ومقعد الصمامات.
3. اسحب أنبوب الصمامات لأعلى حوالي 100 ، والبقاء لبضع ثوان ، واسحب أنبوب الصمامات ببطء بعد تدفق الزيت على أنبوب الصمامات.
4. امسك المقبض وامسح بقع الزيت من أنبوب الصمامات.
ملاحظة: إذا وجد أن الزيت يتدفق من حامل الصمامات ، فيجب سحب صمام تحرير الضغط مرة أخرى لموازنة الضغط داخل الخزان وخارجه.
استبدال الصمامات
1. قم بفك صامولة الأنبوب المصهور بمفتاح ربط وفك الجوز الآخر بمفتاح ربط آخر. (صورة 2-1)
2. قم بفك مسامير النهاية وإزالة الصمامات. (صورة 2-2)
(ملاحظة: إذا لم يتم دمج الصمامات ، يجب تقويم القطب الكهربائي المسطح على شكل قمع قبل إزالة الصمامات)
3. فحص الجزء الداخلي من أنبوب الصمامات لضمان النظافة.
4. أدخل فتيل جديد من طرف واحد ، ويتم تثبيت قطب الصمامات المشتعل مسبقًا عند طرف المقبض. (الصورة 2-3)
5. قم بتركيب أنبوب الصمامات وربطه بمفتاح ربط ، عزم الدوران حوالي 5.7 - 8N.m.
6. قم بتسطح القطب الكهربائي على شكل قمع ، وتثبيت البراغي الداخلية ، واستخدام مفتاح ربط واحد لالتقاط الذوبان ، واستخدام مفتاح ربط آخر لتشديد البراغي ، وعزم الدوران حوالي 5.7 - 8N. م ، ثم قم بفك البراغي النهائية ، تحقق مما إذا كان القطب الكهربائي على شكل قمع مسطح لضمان اتصال جيد.
تثبيت الصمامات في المكونات
1. ربط ثقب عملية أنبوب الصمامات مع ذراع التشغيل المعزولة.
2. أدخل أنبوب المصهر في مقعد المصهر ، وقم بتدوير خطاف القفل لأنبوب المصهر بمقدار 90 درجة ، وشد القفل لربط المصهر لضمان الختم بين مقعد أنبوب المصهر.
صورة 2-1 | صورة 2-2 | صور 2-3 |
ملحق 3 كم أحادي القناة وأكمام ثنائية القناة
تنظيف الأنابيب مزدوجة القناة ، تزييت وتركيب 1. قم بتنظيف سطح التلامس للغلاف المزدوج الممر ومقعد الغلاف مع الإشارة إلى متطلبات غلاف الممر المفرد ، وتطبيق الشحوم ، ومسمار الغلاف المزدوج في اتجاه عقارب الساعة حتى تخافت السقاطة وصوت بعد الشد. 2. استخدم لوحة تثبيت لوضع الأنبوب المزدوج. 3. استخدم 0. 8. أو ما يعادل الأسلاك النحاسية لربط ثقب التأريض للأنبوب المزدوج مع أرضية النظام. 4. تثبيت أجزاء مطابقة (مثل سدادات الكوع ، مانعات الصواعق أو قبعات واقية العزل ، وما إلى ذلك). |
|
تنظيف الأنابيب أحادي القناة والتشحيم والتركيب 1. قم بتنظيف سطح التلامس للغلاف ومقعد الأنبوب ، ووضع الشحوم ، والمسمار في غلاف الممر الواحد في اتجاه عقارب الساعة ، وشده باستخدام أداة خاصة (سبع دورات ونصف). ملاحظة: إذا تم تثبيت الأداة مع عزم الدوران ، فإن عزم الدوران هو 13.5 م 2. الأرض ثقب التأريض من غلاف تمرير واحد مع سلك مرن. |
|
ملحق 4 سدادة الكوع
|
|
شخصية 4-1 | شخصية 4-2 |
تعليمات لتثبيت قابس الكوع
1 .معالجة مرحلة تقسيم الكابل ثلاثي النواة
☆ قطع قبالةأغلفة داخلية وخارجية فيالكابلنهاية>800 Vأ.
☆ وضعت على قفازات فرع في مرحلة الفصل ، غلاف يتقلص الحرارة (تأريض طبقة الدروع) على كل سلك أحادي الطور ، انظر الشكل 4-2لكل حجم العلاج.
2 .تثبيت قابس الكوع
☆ قم بتنظيف سطح الموصل باستخدام فرشاة الكابلات ، ووضع المفصل المضغوط البارد على موصل الكابل ، وبرغي موصل التوصيل في الفتحة اللولبية للمفصل المضغوط على البارد ، وأدخل المفرد (المزدوج) من خلال الغلاف في المستقبل.
☆ اختر أداة العقص المناسبة ، يجب أن يبدأ العقص من وصلة النحاس والألومنيوم لمفصل العقص البارد ، ويدور 90°لكل ضغط ،وإزالة مواد التشحيم الزائدة بقطعة قماش ناعمة.
☆ اسحب موصل التوصيل وقم بإزلاقه.
☆ قم بتنظيف وتليين سطح الكابل والداخل من قابس الكوع ، ودفع الكابل ببطء إلى قابس الكوع ، وتوجيه الاتصال مع الموصل المحمي. ثقب المسمار على المفصل المضغوط البارد مرئي في نهاية قابس الكوع.
☆ قم بفك موصل التوصيل في الفتحة اللولبية للمفصل المضغوط البارد وشده باستخدام مفتاح ربط متصاعد حتى يصبح الالتواء 180. (إذا.)
مع مفاتيح شدات أخرى ، فإن عزم الدوران على وشك 12.4N.m) س
☆ استخدم شريط عازل ذاتي اللصق لف سدادة الكوع وجلبة الانكماش الحراري للكابل.
☆ استخدم سلك تأريض لتوصيل الفتحة الأرضية لسدادة الكوع بنقطة تأريض النظام.
تحميل المدخلات
☆ يجب ضمان مسافة التشغيل الكافية.
☆ استخدم قضيب تشغيل معزول لربط فتحة تشغيل قابس الكوع.
☆ قم بمحاذاة موصل توصيل سدادة الكوع مع موصل الأكمام وادفع للأمام حتى تشعر أنه متصل ، أي تأكد من دفعه في مكانه.
☆ يجب أن تكون العملية سريعة ودقيقة وحاسمة وقوية.
قطع الحمل
☆ ربط فتحة تشغيل قابس الكوع مع ذراع تشغيل معزول.
☆ قم بتحويل ذراع التشغيل المعزول إلى اليسار واليمين لتقليل الاحتكاك بين سطح الغلاف وسدادة الكوع.
☆ اسحب قابس الكوع بسرعة ودقة وحسم وقوة ، مع الحرص على عدم لمس الموصل بسلك أرضي قريب.
☆ تعليق القابس الكوع على واحد (مزدوج) من خلال موصل مع ذراع تشغيل معزول.
☆ استخدم ذراع التشغيل العازل لتغطية الغطاء الواقي العازل المتصل بالسلك الأرضي على الجزء الموصل.
إشعار:يجب أن يتم تشغيل قابس الكوع بواسطة أفراد على دراية بإجراءات السلامة والتشغيل لنظام الطاقة.
استخدام سدادات الكوع لفصل الأحمال فقط في حالات الطوارئ (أو الخاصة) ، ويوصى باستخدام مفتاح مطابق.
لا يمكن استخدام سدادات الكوع لإغلاق أخطاء الدائرة القصيرة.
ملحق 5 تركيبات تمرير مفردة (مزدوجة) وقبعات واقية للعزل
☆ موصل تمرير فردي (مزدوج) يستخدم للتوصيل بقابس كوع مباشر ، عزل الكابل المباشر ، جزئه ، أو استخدامه لسد وسحب لا
يلعب سدادة الكوع المكهربة دورا في الغبار والماء والرطوبة.
☆ يمكن توصيل الموصل ثنائي الاتجاه بقابس من نوع الكوع في طرف واحد ومانع الطفرة من نوع الكوع في الطرف الآخر.
☆ أغطية واقية عازلة توفر العزل والمظاريف الواقية للأكمام والمفاصل.
تثبيت تمرير فردي (مزدوج)
1. قم بإزالة الغطاء الواقي للنقل ، ونظف وتشحيم {ارجع إلى متطلبات الغطاء الفردي (المزدوج) من خلال الأكمام}.
2. استخدام الأسلاك النحاسية لتوصيل واحد (مزدوج) من خلال ثقب التأريض المشترك مع أرض النظام.
3. شنق المفرد (المزدوج) من خلال المفصل على الحائط وشد مسمار التثبيت.
4. ختم المفاصل المقابلة مع أغطية العزل.
ملاحظة: يجب أن تكون جميع المكونات ذات الصلة في حالة عدم وجود طاقة قبل تثبيت موصل المرور المفرد (المزدوج) وإزالته.
تركيب غطاء واقي العزل
1. تنظيف وتليين السطح الخارجي للمفصل (أو الغلاف) المتعلق بالسطح الداخلي للغطاء الواقي العازل.
2. قم بتوصيل سلك التأريض الخاص بغطاء الحماية العازل بأرضية النظام.
3. اربط مقبس الغطاء الواقي بذراع التشغيل المعزول وادفع الغطاء المعزول إلى المفصل (أو الغلاف) ذي الصلة حتى يتم توصيله في مكانه.
إزالة الغطاء الواقي العازل
1. ربط الغطاء الواقي مع ذراع التشغيل المعزولة.
2. أدر الغطاء الواقي إلى اليسار واليمين لتقليل احتكاك سطح التلامس ، وسحبه بقوة لإزالة الغطاء الواقي.
ملحق 6. مؤشر خطأ ومؤشر مباشر
يتم تثبيت مؤشر الخطأ على نقطة اختبار سدادة الكوععندما يتدفق الخط ، يكون مؤشر مؤشر الخطأ أبيض ويتقلب تلقائيًا إلى اللون الأحمر ، مما يشير إلى أن الخط في حالة "خطأ" في هذا الوقت ، عندما تعود الدائرة إلى وضعها الطبيعي ، سيقوم النظام تلقائيًا بإعادة تعيين نافذة المؤشر ويتحول إلى اللون الأبيض. يحتوي مؤشر الخطأ على عتبات يمكن اختيارها ، عالية ومنخفضة ، مع عتبة منخفضة تبلغ حوالي 400أ (RMS) وعتبة عالية تبلغ حوالي 800أ (RMS). في وقت التسليم ، يتم تعيين نافذة العرض لمؤشر الخطأ في إشارة الخطأ (أي يتم عرضها باللون الأحمر) ، وبعد التثبيت ، عندما يصل جهد الخط إلى 5 كيلو فولت ، بعد بضع دقائق ، يكون مؤشر الخطأ في حالة العمل العادية ، ويتم إعادة تعيين نافذة العرض تلقائيًا إلى الحالة العادية (أي يتم عرضها باللون الأبيض).
ملاحظة: فقط عندما يصل الجهد من الخط إلى الأرض أكثر من 5 كيلو فولت ، يمكن لمؤشر خطأ إجراء عرض خطأ وإعادة تعيين لتخزين الطاقة.
تم تثبيت المؤشر المباشر على نقطة اختبار قابس الكوعيشير الوميض المستمر لضوء المؤشر إلى أن الخط مباشر لتنبيه الباحث عن الخط.
مؤشرات الأخطاء والمؤشرات الحية هي منتجات محكمة الغلق تمامًا للاستخدام في مجموعة واسعة من المناخات وحالة مؤشراتها لن يتغير بسبب الاهتزاز أو الصدمة الميكانيكية.
خطوات التركيب:
1. ينقسم تثبيت المؤشر إلى حالتين: رأس الكابل مباشر وغير مباشر ، في ظل الظروف العادية ، يجب إلغاء تنشيط رأس الكابل وترسيخه قبل التثبيت.
2. قم بإزالة الغطاء الواقي لنقطة اختبار قابس الكوع باستخدام ذراع تشغيل معزول (يجب أن تكون نقطة الاختبار خالية من البقع والصدأ).
3. مؤشر التشحيم يتصاعد السطح الداخلي للحذاء.
4. ربط ثقب التشغيل للمؤشر مع ذراع التشغيل المعزول ، ووضع المؤشر على نقطة اختبار قابس الكوع ، وقم بتدويره إلى الموضع المناسب. تحذير: قد تتسبب العيوب القذرة أو الرطبة أو غيرها من نقاط الاختبار أو المؤشر في أن يشير المؤشر المباشر بشكل خاطئ إلى أن الخط خارج الطاقة. في
قبل تشغيل المعدات ذات الصلة ، تأكد من استخدام طرق اختبار أخرى معتمدة من قبل المعيار الوطني للتحقق مما إذا كان الخط يحتوي على كهرباء.
