سنقدم الأداء وأساليب التشغيل الآمنة والمعايير التقنية لمفاتيح الجهد المتوسط XGN2-12
نطاق التطبيق
منفذ XGN-12 صندوق مفاتيح معدنية ثابتة مغلقة نوع (يشار إليها باسم خزانة الشبكة الحلقية) مناسبة للتيار المتردد 50 هرتز ، وشبكة 10 كيلو فولت كحمل كسر وتيار الدائرة القصيرة والإغلاق ، تم تجهيز خزانة الشبكة الحلقية هذه بآلية نابض يدوية وكهربائية لتشغيل مفتاح الحمل ، ومفتاح التبديل الأرضي والعزلة مجهزة بآلية التشغيل اليدوية. تتمتع خزانة الشبكة الحلقية هذه بأداء كامل قوي ، وحجم صغير ، ولا توجد بها مخاطر حريق وانفجار ، ولها وظيفة "الوقاية الخمسة" الموثوقة.
استخدام الظروف البيئية
الحد الأعلى لدرجة الحرارة المحيطة هو 40 درجة مئوية ، والحد الأدنى هو-25 درجة مئوية ؛
الارتفاع لا يتجاوز 1000 متر ؛
المتوسط اليومي للرطوبة النسبية للهواء لا يزيد عن 9% ، ولا يزيد المتوسط الشهري عن 90 ٪ ؛ المتوسط اليومي لبخار الماء لا يزيد عن 2.2 × 10 × 3Mpa ، ولا يزيد المتوسط الشهري عن 1.8 × 10-3Mpa ؛
الهواء المحيط غير متآكل أو ملوث بشكل واضح بالغازات القابلة للاحتراق وأبخرة الماء ؛
لا اهتزازات عنيفة منتظمة.
النموذج والمعنى
XGN□-□-□-□/□-□
شبكه تيار حراري مستقر (كا)
من الدرجة الأولى (أ)
طريقة التشغيل (ي عملية الزنبرك د التشغيل الكهرومغناطيسي).
One plan-رقم خطة واحد
بجهد مقدر من
الرقم التسلسلي لتصميم (بالعربية)
من من هم
مثقاب من من من من
مراكز من النوع المربع
استخدام الظروف البيئية
• الحد الأعلى لدرجة الحرارة المحيطة 40 درجة مئوية الحد الأدنى-25 درجة مئوية (داخلي):
"تخصيص 1000 م"
(عندما يتجاوز ارتفاع المياه 1000 متر ، يجب تنفيذه وفقاً للأحكام ذات الصلة من "المبادئ التوجيهية التقنية للطلب المشترك للمفاتيح الكهربائية ذات الفلطية العالية") ؛
* المعدل اليومي للرطوبة النسبية لا يزيد عن نسبة 9 ٪ ، ولا يزيد المتوسط الشهري عن نسبة 9 ٪:
لا تتجاوز شدة الهزات الأرضية 8 درجات ؛
◆ لا يوجد حريق ، خطر الانفجار ، تلوث خطير ، تآكل كيميائي ومكان اضطراب عنيف.
المعلمات التقنية الرئيسية من المفاتيح الكهربائية
الرقم التسلسلي | مشروع | وحدة | البيانات |
1 | الجهد المقنن | KV | 3、6、10 |
2 | أقصى الجهد التشغيل | KV | 3.5、8.9、11.5 |
3 | التصنيف الحالي | أ | Me-00 |
4 | تصنيف كسر الحالي | كا | 16.20、31.5、40 |
5 | تصنيف المشاركة ماس كهربائى (تصنيف ماس كهربائى قبالة التيار) | كا | 40、50、80.100 |
6 | تيار تثبيت حراري بدائرة قصيرة مُصنّف | كا | 16.20、31.5、40 |
7 | مصنفة للتيار المستقر حراريا | كا | 40、50、80、100 |
8 | وقت التسوية الحراري المقنن | S | 4 |
9 | مستوى الحماية | IP | IP2X |
10 | نظام بسبار | - | بسبار واحد ، بجانب بسبار واحد |
11 | كيف يعمل | - | نوع الكهرومغناطيسي ، الربيع نوع تخزين الطاقة |
12 | الأبعاد (العرض, × عمق, × ارتفاع). | مم | 1100 × 1200 × 2650 (أقل من 1000أ). |
13 | الوزن | كجم | 1000 |
هيكل وجهاز مكافحة الخطأ
هيكل
الخزانة عبارة عن هيكل مدرع معدني مغلق ، الهيكل العظمي للخزانة ملحوم بزاوية فولاذية ، وتنقسم الخزانة إلى غرفة قاطع الدائرة ، وغرفة بسبار ، وغرفة كابل ، وغرفة ترحيل ، ويمكن ملاحظة تشغيل المكونات الرئيسية في الخزانة من خلال نافذة المراقبة والإضاءة على الواجهة. من أجل تحسين الأداء الفني للمفاتيح الكهربائية ، تمت إعادة تصميم المكونات الرئيسية (مثل قواطع الدائرة الكهربائية ، ومفاتيح قطع التوصيل الدوارة ، وما إلى ذلك).
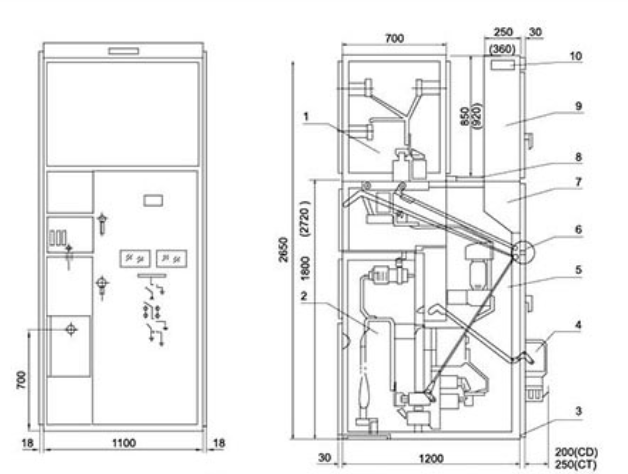
وفقا لتخطيط الخزانة ، يتم تثبيت غرفة التتابع مع مرحل ، يمكن تجهيز الباب بمرحل إشارة ، أداة مؤشر ، ضوء إشارة ، تركيب مفتاح النقل وغرفة التشغيل ، الجزء الخلفي هو غرفة بسبار ، الجزء السفلي هو كابل الغرفة ، يمكن للمستخدم بسهولة الأسلاك. الجبهة هي غرفة قاطع الدائرة ، مما يسهل صيانة المفاتيح الكهربائية. تظهر الآلية الداخلية للخزانة في الشكل 1 والشكل 2 ودليل المنتج.
جهاز منع الأخطاء
وظائف "الوقاية الخمس" هي: منع سوء الاتصال وسوء الاتصال لقواطع الدائرة الكهربائية ؛ منع الخطأ في تعريف ومفتاح فصل الاتصال بالحمل ؛ منع الإغلاق المباشر والمفتاح الأرضي ؛ منع تشغيل مصدر الطاقة عند فتح الأرض وإغلاقها ؛ يمنع الخطأ في فترات البث المباشر.
تعتمد لوحة المفاتيح هذه طريقة القفل الميكانيكية الإلزامية ، ويتكون الجهاز المضاد للخطأ من المكونات الرئيسية مثل الدعامات والأقراص والألواح وألواح القفل والمقابض وقضبان التوصيل ، والتي تتميز بخصائص الأداء الموثوق به والوظائف الكاملة والبنية البسيطة والتشغيل السهل ، وذلك لتحقيق" خمسة إجراءات وقائية بسيطة وفعالة:
(1) تُستخدم مفاتيح التحكم (مفاتيح كيلوواط) مع لوحات حمراء وخضراء في مخططات قاطع الدائرة لمنع سوء الاتصال واختلاس قواطع الدائرة ؛
(2) فقط بعد قطع قاطع الدائرة بالفعل ، يمكن سحب المقبض الصغير من وضع "العمل" وطلبه إلى اليمين في وضع "قفل الفصل" ؛ مفاتيح عزل الانقسام والإغلاق ؛ منع تقسيم الحمل وإغلاق مفاتيح العزل. تتمتع موثوقية الإغلاق والمانعة للقفل بوظائف مزدوجة لمنع الأخطاء ، أي عندما يكون المقبض الصغير في وضع "الفصل والقفل" ، فإنه لا يمكنه سوى إغلاق وتقسيم مفاتيح العزل العلوية والسفلية ، ولا يمكنه إغلاق قاطع الدائرة ، وتجنب عدم إغلاق قاطع الدائرة ؛
(3) عندما يكون قاطع الدائرة ومفاتيح العزل العلوية والسفلية في حالة مغلقة والمقبض الصغير في وضع "العمل" ، لا يمكن فتح أبواب الخزانة الأمامية والخلفية لمنع دخول الفاصل المباشر عن طريق الخطأ ؛
(4) عندما يتم فتح مفاتيح العزل العلوية والسفلية ، لا يمكن إغلاق مفتاح التأريض ، ولا يمكن توصيل المقبض الصغير من موضع "القفل" إلى وضع "الصيانة" ، مما يمكن أن يمنع البث المباشر من تعليق سلك التأريض ؛
(5) إذا لم يتم فتح مفتاح التأريض ، فلا يمكن إغلاق مفاتيح العزل العلوية والسفلية ، مما يمنع مفاتيح قطع الاتصال بسلك التأريض من الإغلاق.
مخطط XGN□ - 12/07D (الشكل 1)

1. غرفة بسبار 2. غرفة كابل 3. حافلة تأريض 4. آلية كهرومغناطيسية (نابضة) 5. غرفة جهاز دائرة جديدة
6. التشغيل اليدوي وآلية البيع المشتركة 7. غرفة التشغيل 8. قناة تحرير الضغط 9. غرفة الأدوات 10. محطة حافلات صغيرة
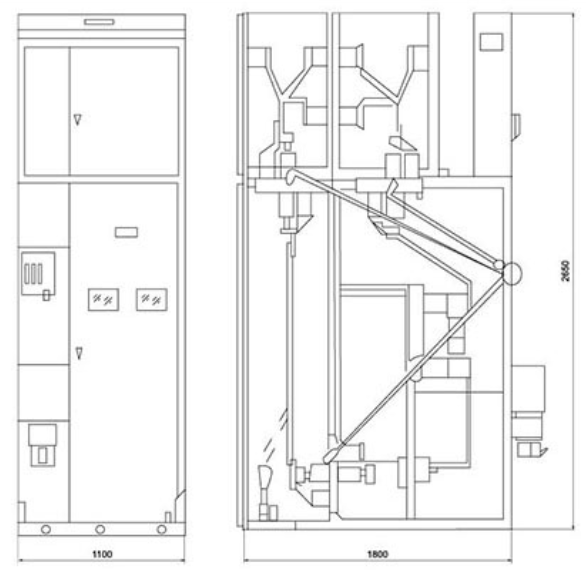
المخطط التفصيلي (منفذ الكابلات الالتفافية) (الشكل 2)

رسم تركيب الأبعاد


